ePrivacy and GPDR Cookie Consent by Cookie Consent Double storey extensions: Guide & free quote | Resi

Double story extensions

Gain extra bedrooms as well as more living space with a double storey extension

Ideas and inspiration for double storey extensions

Double storey extensions can add significant space to your home, both upstairs and downstairs. Take a look at some of Resi’s two storey projects for inspiration.

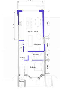
Millington Road, Cambridge

Ground floor and two storey extensions

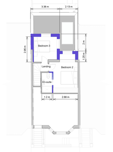
Windmill Cottage, Tonbridge and Malling

Two storey extension

What is a double storey extension?

A double storey extension is when you build across two floors, usually at the rear or side of your home, to create extra space. The benefit of adding space both upstairs and downstairs is that you can achieve better living space, like a larger kitchen or family area downstairs, as well as extra bedrooms, a home office, or even a bathroom upstairs. By adding two levels at once, you can create a home that feels future-proof and suited to your way of living.

How much does a double storey extension cost in 2025?

A double storey extension is one of the more expensive extensions you can do, because adding to your house across two floors means you’ll be building a lot of extra square footage. And, while the cost of every project can vary a lot depending on the scale of it, what kind of design and materials you choose, and where you’re based, Resi does have some average cost data. Across the double storey rear extensions and double storey side extensions worked on by Resi in 2024 and 2025, the average project ranged between £95,000 and £240,000. That’s obviously a very broad bracket, because the size and scale of a two storey extension can range so much from project to project. You can use Resi’s cost calculator to get a clearer idea of what your build cost might be, and if you want some advice on how to finance your side extension, the Resi Finance team can help you look at your options.

Example extensions with build costs

What are the different types of double storey extensions?

There are a few different options for two storey extensions, and the one you choose will depend on the space you have available around your house:

Double storey rear extension

If you don’t need all of your garden space, you might want to extend to the back of your house. Adding a two storey extension to the rear can enable you to create light and bright new spaces.

Double storey side extension

Particularly popular in semi-detatched homes, this kind of project can give you extra bedrooms or bathrooms as well as living areas, which is one of the most effective ways to increase the value of your house.

Resi’s double storey extensions

0

Double storey extensions worked on

All time

0

Planning approval rate

All time

0

Av. time to decision

Last 12 months

0

Median build cost (excl VAT)

Last 12 months

Do you need planning permission for a double storey extension?

For some extensions, you can avoid the need for planning permission by using permitted development rights. Although this is an option for some smaller double storey extensions, permitted development rules are much stricter for two storeys than they are for one. So it’s more likely that you’ll need to apply for planning permission rather than going down the permitted development route. When preparing for your planning application, it’s important to consider how your extension might impact your neighbour’s light and their amenity (their enjoyment of the space). You should also make sure your extension isn’t too big for the space, which the council calls 'overdevelopment'. Book a free advice call with Resi’s expert planners to talk through ways to give your project the best chance of getting planning permission.

0 Double storey extensions recently submitted for planning in the UK

Approved 12 Dec '25
Ground floor internal alteration & rear and two storey rear and whole house internal alteration
Approved 12 Dec '25
Two storey rear
Approved 12 Dec '25
Loft main dormer and two storey rear & side
Approved 12 Dec '25
Garage conversion and ground floor rear and two storey rear
Approved 12 Dec '25
Two storey front & rear
Approved 11 Dec '25
Ground floor front & rear and two storey rear
Approved 11 Dec '25
Two storey front & rear
Approved 11 Dec '25
Ground floor rear and loft main dormer and two storey rear & side
Approved 12 Dec '25
Ground floor rear and two storey side
Approved 12 Dec '25
Ground floor internal alteration & rear & side, and wraparound and loft main dormer and two storey rear
Approved 12 Dec '25
Garage new build and ground floor front and two storey front & rear
Refused 12 Dec '25
Two storey rear
Approved 12 Dec '25
Ground floor rear and two storey side
Approved 15 Dec '25
Ground floor front and two storey side
Approved 15 Dec '25
Two storey rear & side
Approved 12 Dec '25
Two storey side
Approved 12 Dec '25
Two storey side
Approved 15 Dec '25
Two storey side
Refused 16 Dec '25
Ground floor front & internal alteration, and rear and loft no dormer and two storey rear
Approved 12 Dec '25
Two storey side

Why choose Resi for your side extension?

If you’re thinking about a double storey extension, Resi can help make the process straightforward. The team will support you at every stage, from smart, practical design and planning applications with a 90%+ approval rate, to building regulations and advice on financing. When it comes to construction, we can introduce you to trusted local contractors and even help you compare their quotes (for free!). With expert guidance and end-to-end support, we take the stress out of building across two floors. Ready to get started?

Research tools

Double storey extension FAQs

Can I build on top of my garage?

In theory, you can build on top of your garage, but it all depends on the foundations you have in place. You’ll need the footings checked by an engineer to see whether they can support a second storey. Based on their findings, they’ll be able to advise on the best course of action: either demolishing the existing garage and rebuilding it with stronger foundations, or working with what you’ve got.

What’s the average cost of a double storey extension?

A double storey extension is one of the pricier ways to expand your home, since you’re adding significant space across two floors. While costs vary depending on design, materials and location, Resi projects with two floors in recent years have range between £95,000 and £240,000. If you’re in London or nearby, expect your build to fall towards the higher end of that scale.

Are two storey extensions worth it?

Building a double storey extension is a major project, so it’s important to think through both the challenges and rewards. On the one hand, there’s the upfront investment and the short-term disruption to daily life. On the other hand, you’re creating substantial extra space across two floors. That gives you room for a larger kitchen, an extra bedroom, home office, or family living area, while also adding long-term value to your property.

By weighing up the practical realities alongside the lifestyle improvements, you’ll get a clearer sense of whether a double storey extension is the right move for your home.

How much value will a double storey extension add?

Every home is different, which means it can be hard to gauge exactly how much value an extension will add. But one done well could add between 10%-15% to your house price.

Bedrooms are particularly good for adding extra value, so fitting at least one extra into your new floorplan upstairs is a good idea. For a better idea of how much you could increase your home’s value, try Resi’s free extension valuation calculator.

How long does a double storey extension take?

A double storey extension is usually a big project, so it will take some time. On average, home extensions in the UK usually take between 7 and 12 months end-to-end. That timeframe includes working with an architect to perfect your design, getting planning permission if you need it, finalising detailed technical drawings, picking which contractors you want to use, and then the building process itself.

Customer reviews

Excellent

Really good and easy to use online platform

Richard • TW11

Loft L shaped dormer

Delighted home owner

Fantastic service would highly recommend this e...

Lyn • BR6

Ground floor Rear

Really good service,

Really good service, we dealt with multiple at ...

Nick • NW10

Ground floor Side infill

Resi have been amazing from the start

Resi have been amazing from the start, the comm...

Obi • BR5

Garden Annex

The team at Resi have been so unbelievably help...

The team at Resi have been so unbelievably help...

Annie • NW7

Ground floor Wraparound

took all the work and kept me in touch…

took all the work and kept me in touch all the ...

Roger • NW5

Ground floor Internal alteration

I found Resi personnel very helpful

I found Resi personnel very helpful. Their meth...

Jacqueline • CM3

Ground floor Rear

It is a 10 from me! :)

It is a 10 from me! :) I found Resi through onl...

Yiming • W14

Custom Custom

Working with Resi has been such a pleasure from...

Working with Resi has been such a pleasure from...

Saqib • SL6

Ground floor Rear

Outstanding Service

Shabnam from the Resi finance team is exception...

Joie • MK10

Ground floor Rear

Our experience with Resi

Our experience with Resi was one of the best cu...

Abu • DA8

Ground floor Rear

Excellent, friendly service

Jack at Resi was brilliant at bringing together...

Oliver • W4

Loft L shaped dormer

Read more about double storey extensions

Extension Types

A deep dive into double-storey rear extension rules and regulations

02 Oct '25 • 5 min read
Extension Types

The types of house extensions: design and ideas

02 Oct '25 • 8 min read
Design Inspiration

Which home improvements add value to your house?

02 Oct '25 • 4 min read

Book a free architectural advice call

Get answers to your pressing double storey extension questions, like whether you need planning permission, how much it might cost, and whether your vision is possible where you live. Book your call today.